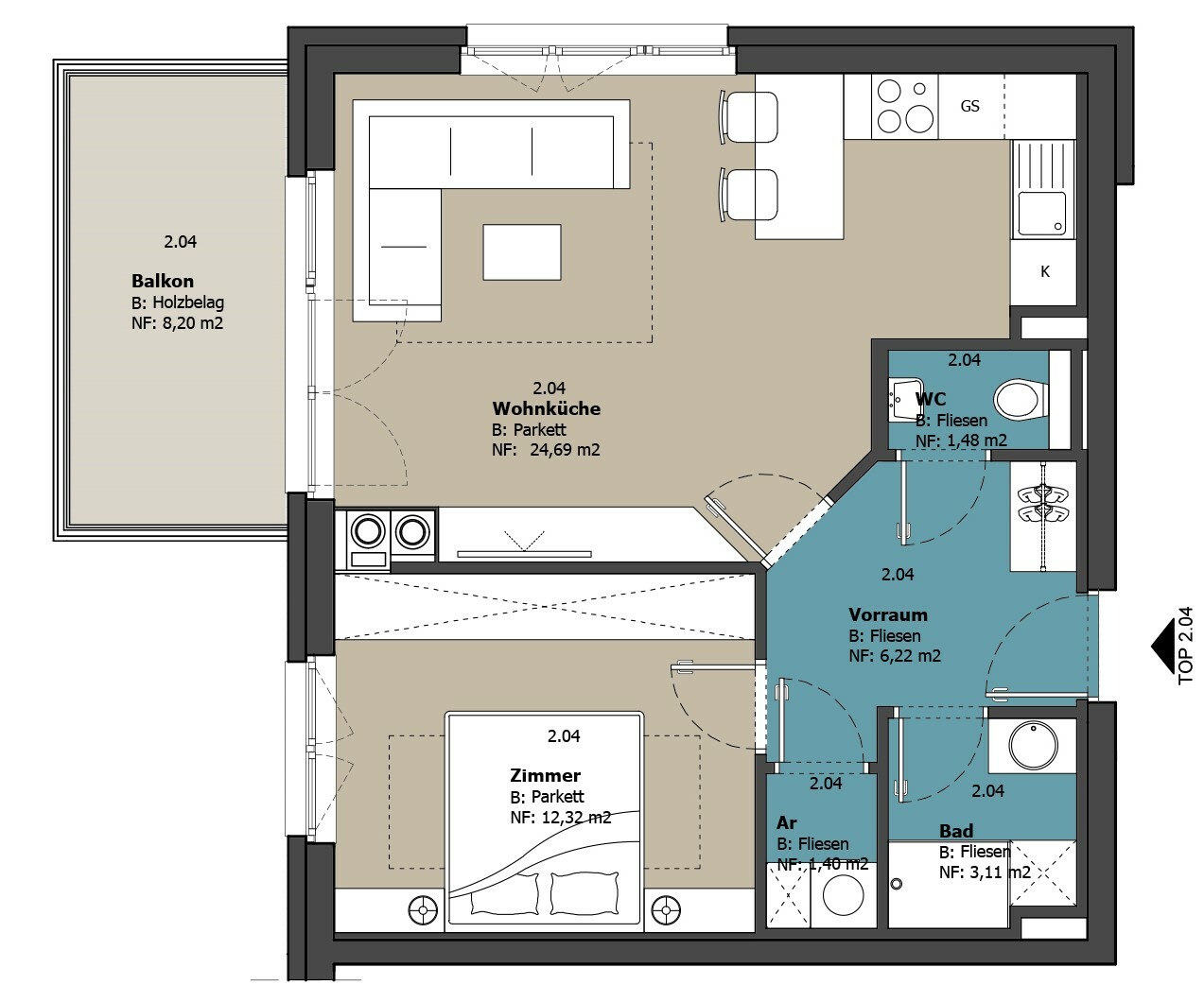
Top 2.04
" Weißburgunder "
- Vorraum : 6,22 м²
- Wohnküche : 24,69 м²
- Zimmer : 12,32 м²
- Bad : 3,11 м²
- WC : 1,48 м²
- AR : 1,40 м²
- Balkon : 8,20 м²
- Wohnfläche : 48,12 м²
- Freifläche : 8,20 м²
{"0":{"lid":"1531306243545","ls":"10","loff":"","li_type":"em","li_name":"email","li_title":" E-mail","li_ph":"mail@example.com","li_nm":"email"},"1":{"lid":"1531306540094","ls":"20","loff":"","li_type":"nm","li_name":"name","li_title":"Name","li_ph":"Name","li_nm":"name"},"2":{"lid":"1594303178711","ls":"30","loff":"","li_type":"ph","li_title":"Nummer ","li_ph":"Telefonnummer","li_nm":"Phone"}}
Smartes Wohnkonzept in zentraler Lage
{"0":{"lid":1609514651297,"ls":"10","loff":"","li_type":"em","li_name":"email","li_title":" E-mail","li_ph":"mail@example.com","li_nm":"email"},"1":{"lid":1609514651298,"ls":"20","loff":"","li_type":"nm","li_name":"name","li_title":"Name","li_ph":"Name","li_nm":"name"},"2":{"lid":1609514651299,"ls":"30","loff":"","li_type":"ph","li_title":"Telefonnummer ","li_ph":"Nummer","li_nm":"Phone"}}