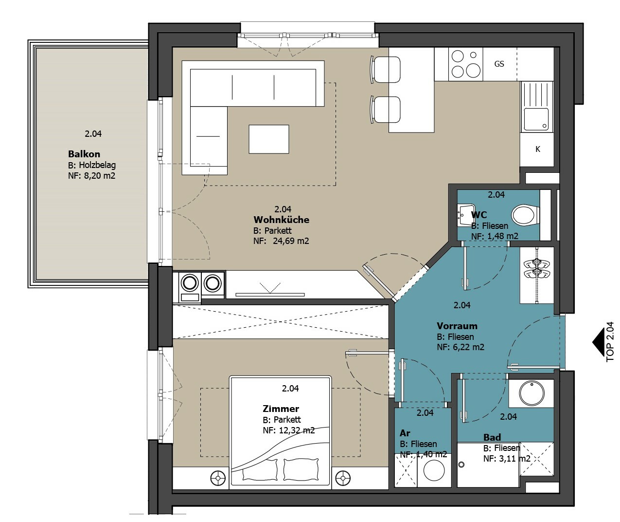
Top 2.04
" Weißburgunder "
- Vorraum : 8,49 м²
- Wohnküche : 28,91 м²
- Zimmer : 11,77 м²
- Zimmer : 14,27 м²
- Bad : 4,40 м²
- WC : 1,53 м²
- AR : 1,35 м²
- Garten : 43,23 м²
- Garten : 90,33 м²
- Terrasse : 10,00 м²
- Gesamt : 112,81 м²
Smartes Wohnkonzept in zentraler Lage
Drücken Sie auf die Planung, um es zu vergrößern